Type
Champlain Avenue, Whitby ON
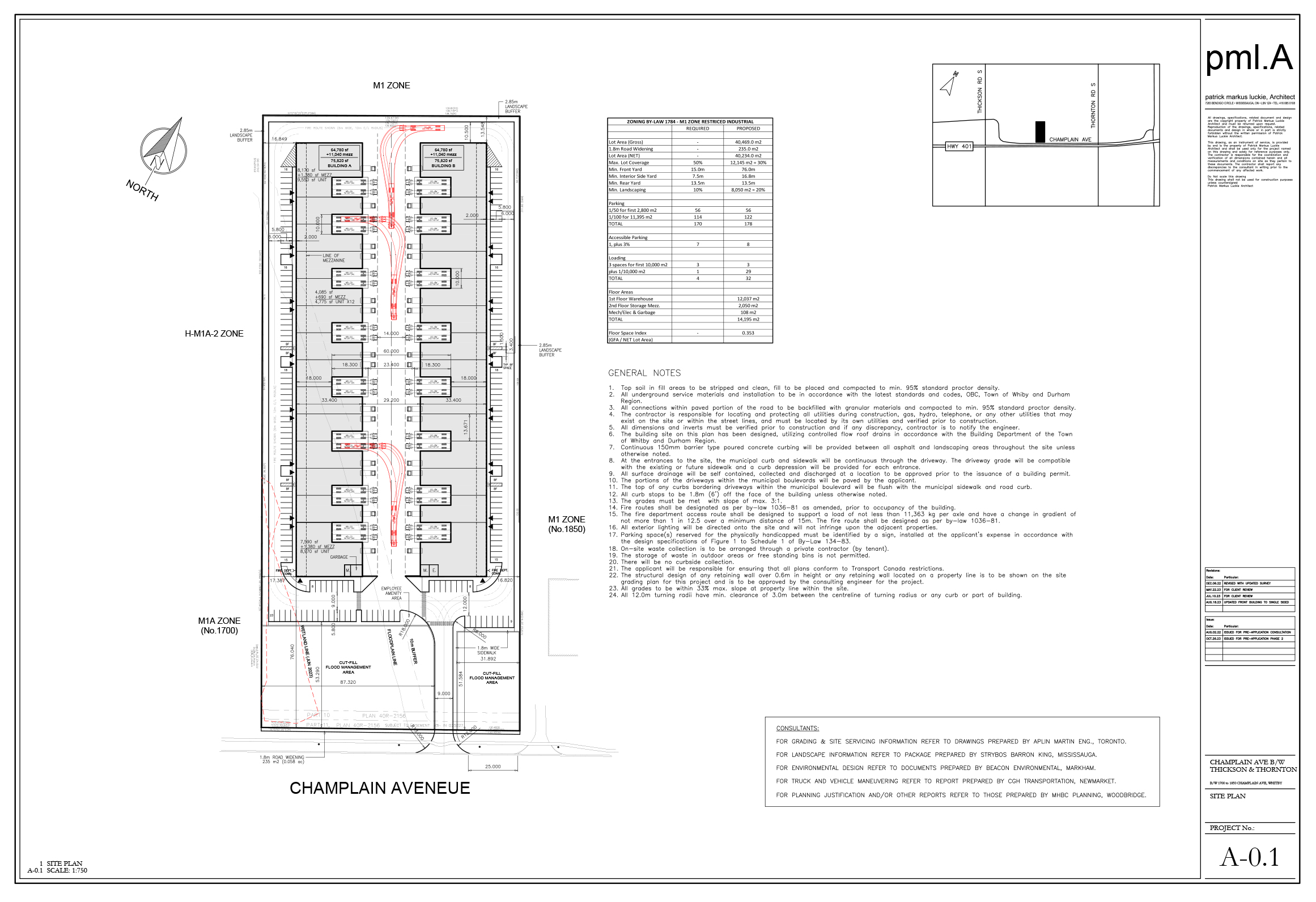
Acquired land with flood plain and conservation issues with the intention to develop small-bay industrial condominiums. Determined we could improve the developable area and shortly after acquiring the property a user registered its interest to acquire the land so it was sold after only 3.5 months of ownership.
Project Length
4 months
Land Area
10.01 acres
Acquired
September 2023
Building Area
150,000 SF
Completion
December 2023
Project Size
$14.8M
Project Status
Completed
About the project
- Acquired 10.01 acres (7.5 acres deemed developable) with floodplain and conservation issues at low cost-basis.
- Through engineering we were able to manipulate the location and size of the flood plain and conservation limits, gaining approximately 1 acre of additional developable area as well as creating a far more efficient site shape allowing for greater lot coverage to be achieved.
- Found a buyer shortly after closing on the property and successfully completed the project in December of 2023.
